Дома под ключ в Туле
Отзывы из Яндекс Карт
4.9
79 отзывов
Дополнительные услуги 88%
2 154 оценок
Комплектации 89%
1 535 оценок
Планировки 90%
2 484 оценок
Проекты 93%
2 231 оценок
С
Зарема Лукьянова03/01/2026 г.
Привезли домокомплект как и договаривались, в срок. Но сборка немного затянулась из-за дождей в тот май, это было неприятно, но не критично.
С
Ира Андрианова08/14/2025 г.
Баня из бруса от Брус дома — это не просто постройка, а настоящее произведение искусства, где каждая деталь продумана до мелочей, а пар получается легким и ароматным, словно в настоящей русской традиции, спасибо за ваше мастерство.
Отзывы из Google Карт
4.8
48 отзывов
Дополнительные услуги 88%
2 154 оценок
Комплектации 89%
1 535 оценок
Планировки 90%
2 484 оценок
Проекты 93%
2 231 оценок
С
Валентин Ларин05/02/2026 г.
Баня 5х6 с сауной и купелью внутри, проект нестандартный — сам рисовал. В компании отнеслись с пониманием, инженер доработал чертежи, согласовали за неделю. Строили три месяца, были мелкие косяки по электрике, но всё исправили.
С
Елизавета С.04/03/2026 г.
Баню 5,5х8,5 с бассейном и сауной делали полгода назад. Внутри всё аккуратно, парилка держит жар. Только вот слив в бассейне сделали с маленьким уклоном — вода застаивается, но это мелочь.
С
Лида Пастухова01/18/2026 г.
Обратилась в «БрусДома» за баней 5х5 с сауной и маленьким бассейном. Сделали очень аккуратно, даже муж похвалил, а он придира. Но в договоре был пункт про лестницу на второй ярус — в итоге забыли её напилить, пришлось звонить, через неделю доделали.
С
Вика Л.04/03/2025 г.
Каждый гость непременно восхищается изящной линией крыши и аккуратными углами нашего сруба, а мы с гордостью рассказываем о том, что работали с вами и получили именно то, что рисовали в своем воображении долгие месяцы.
Отзывы из 2гис
4.9
39 отзывов
Дополнительные услуги 88%
2 154 оценок
Комплектации 89%
1 535 оценок
Планировки 90%
2 484 оценок
Проекты 93%
2 231 оценок
С
Кир Т.02/04/2026 г.
Построили баню 4х6 с сауной и комнатой отдыха 3х3. Всё компактно, но функционально. Печь выбрал металлическую, дымоход сэндвич. Мастера собрали за два дня. Запахло деревом, пар лёгкий. Жена в восторге, я тоже. Рекомендую.
С
Эдуард03/26/2025 г.
Строил каркасный дом с компанией Брус дома и получил именно то, о чем мечтал. На всех этапах чувствовался профессиональный подход — от создания проекта до финишной отделки. Бригада работала быстро и качественно, использовали современные инструменты и материалы. Дом теплый, светлый и очень комфортный для жизни. Большое спасибо за отличную работу.


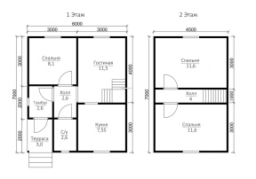
Проект №95 Каркасный дом с тремя спальнями 6х7

каркас из строганой доски
Создайте свой план для этого проекта
и отправьте его нам на расчет в один клик.
Каркасный дом (150 мм) 6х7 Толщина утепления 150 мм 1872500 Заказать
Каркасный дом (200 мм) 6х7 Толщина утепления 200 мм 2042500 Заказать

Для того, чтобы адаптировать уже готовый проект и получить уникальную планировку, пользуйтесь нашим планировщиком.

С помощью планировщика можно создать максимально подходящие эскизы, схемы, планы, чертежи дома с эркером, мансардой, с одной, двумя или тремя спальнями. Вы получите проект с современной планировкой, полностью отвечающий вашим потребностям.

При заказе дома вы сможете подобрать нужный тип кровли. Вашу крышу можно сделать двускатной, четырехскатной и вальмовой. Двухскатную считают особенно популярной в малометражных постройках.

Популярные размеры: мини - до 50м2 (чаще всего, 1-этажные дома); компактные - от 70м2 до 100 квадратов (обычно двухэтажные); большие - от 150 м2 и больше.

Предлагаем дуплексы - каркасные дома с двумя входами, рассчитанные на несколько семей. Дома предполагаются для нескольких хозяев, они разделяются на две половины, для каждой половины с отдельным входом.


Наши работы

Перейти в галерею


Комплектация

Площадь застройки: 42 м2
Длина: 7 м
Ширина: 6 м
Общая площадь: 70 м2
Исполнение Под ключ (с отделкой)
Фундамент Свайно-винтовой или ж/б сваи (рассчитываются отдельно).
Гидроизоляция фундамента Рубероид в два слоя.
Основание (обвязка) Из обрезного бруса 150х150 мм. 150х200 мм. согласно выбранной толщине утепления. Торцевая доска строганая 45х145/45х195+/-5 мм. согласно выбранной толщине утепления. Обработка антисептиком.
Цокольное перекрытие Строганая доска камерной сушки 45х145/45х195+/-5 мм. с шагом 590 мм. Обработка антисептиком.
Пол черновой Обрезная доска камерной сушки 20х100 мм.
Влаго-ветрозащита чернового пола Мембрана Ондутис А100.
Внешние стены Стойки каркаса из строганой доски камерной сушки 45х145/45х195+/-5 мм. с шагом 590 мм. Верхняя двойная и нижняя обвязки из строганой доски камерной сушки 45х145/45х195+/-5 мм. Разгрузочный ригель из строганой доски 45х145+/-5 мм. Укосины из строганой доски 20х95 мм.
Перегородки Стойки каркаса из строганой доски камерной сушки 45х95+/-5 мм. с шагом 590 мм. Верхняя двойная и нижняя обвязки из строганой доски 45х95+/-5 мм. Разгрузочный ригель из строганой доски камерной сушки 45х145+/-5 мм. Укосины из строганой доски камерной сушки 20х95 мм.
Сборка каркаса На гвозди.
Высота от пола до потолка Дом одноэтажный: 2,5 м. Дом с мансардой: 1-ый этаж- 2,5 м.
2-ой этаж (мансарда)- 2,3 м.
Дом в полтора и два этажа:
1-ый этаж 2,5 м.
2-ой этаж 2,4 м. в полутораэтажном доме
2,5 м. в двухэтажном доме.
Внешняя отделка стен Имитация бруса камерной сушки, сорт АВ, толщиной 17 мм. Монтаж через строганый брусок камерной сушки 45х45+/-5 мм. (вентилируемый фасад). Влаго-ветрозащитная мембрана- Ондутис А100.
Внутренняя отделка стен, перегородок Евровагонка камерной сушки, сорт АВ, толщиной 12,5 мм. по строганой рейке 20х40+/-5 мм. либо ГКЛ 12,5 мм.
Отделка потолка Евровагонка камерной сушки, сорт АВ толщиной, 12,5 мм. по строганой рейке 20х40+/-5 мм. либо ГКЛ 12,5 мм.
Пол чистовой Шпунтованная доска камерной сушки толщиной 35-36 мм. сорт АВ. по строганой рейке 20х40+/-5 мм. либо шпунтованная ДСП 16 мм. по разряженной обрешётке из строганой доски камерной сушки 20х95+/-5 мм.
Утепление (пол, потолок) Минеральная вата Knauf 150/200 мм. согласно выбранной толщине утепления.
Утепление стен Плитный утеплитель Rockwool, толщиной 150/200 мм. согласно выбранной толщине утепления.
Звукоизоляция перегородок Плитный утеплитель Rockwool, толщиной 100 мм.
Пароизоляция (стены, перегородки, пол, потолок) Плёнка Ондутис R70. Дополнительная герметизация нахлёстов/примыканий пароизоляционной плёнки клейкой лентой Delta.
Окна Двухкамерные стеклопакеты ПВХ белого цвета, профиль 60 мм. В комплекте: отливы, подоконники, москитные сетки.
Двери Входная- металлическая, утеплённая (Россия). Межкомнатные- филёнчатые.
Наличники на окна и двери Наличник деревянный, строганый, камерной сушки 70-90 мм. с двух сторон.
Лестница (при наличии второго этажа) Деревянная, одно или двухмаршевая. Перила- заводские резные, балясины- заводские точеные, устанавливаются стартовые точёные столбы. Ступени 40х200 мм. Тетива лестницы- 90х140 мм.
Крыша Двускатная, ломаная или вальмовая в соответствии с проектом.
Стропильная система Выполнена из строганой доски камерной сушки 45х145/45х195+/-5 мм. Шаг установки стропил 590 мм.
Обрешётка Выполняется из строганой доски камерной сушки толщиной 20х95+/-5 мм. Шаг крепления обрешетки 350 мм. Контробрешётка выполняется из строганого бруска камерной сушки 45х45+/-5 мм. Крепится по стропилам (вентиляционный зазор).
Подкровельная мембрана Ондутис А100
Кровельное покрытие (на выбор) Металлочерепица 0,45 мм. Цвет на выбор.
Фронтоны (при наличии) Каркас из строганой доски камерной сушки 45х145/45х195+/-5 мм. Обшиваются имитацией бруса камерной сушки, сорт АВ, толщиной 17 мм. Монтаж через строганый брусок камерной сушки 45х45+/-5 мм. (вентилируемый фасад). Влаго-ветрозащитная мембрана- Ондутис А100. Монтаж вентиляционных решёток.
Свесы крыши Ширина 400 мм. Подшиваются вагонкой камерной сушки, сорт АВ.
Терраса/балкон (при наличии) Устанавливаются опорные столбы из строганного бруса камерной сушки 140х140 мм.
Отделка потолка террасы/балкона Евровагонка камерной сушки толщиной 12,5 мм. сорт АВ.
Пол террасы/балкона Шпунтованная доска камерной сушки толщиной 35-36 мм. сорт АВ.
Ограждение террасы/балкона Перила- строганая доска. Балясины- точеные, фигурные. Либо ограждение в скандинавском стиле. Устанавливаются ступени у входа.
Допуск на геометрические параметры Составляет +/- 50 мм по длине с каждой стороны.
Допускается стыковка имитации бруса, вагонки и половой доски По всему периметру стен дома (если ширина и длина дома более 6,0 метров). Вагонки и доски пола в каждой отдельной комнате.
Допуски по имитации бруса, вагонке, доске +/- 5 мм.
В стоимость включена Доставка комплекта материала в радиусе 500 км. от г. Пестова Новгородской области и сборка дома на вашем участке.
Гарантия 5 лет.
Бытовка строительная 2,0х3,0 м. каркасно-щитовая. Стоимость 23000 руб. Остаётся на участке Заказчика.
Туалет 1,0х1,0 м. каркасно-щитовой. Стоимость 12000 руб. Остаётся на участке Заказчика.
Генератор Стоимость аренды на весь срок строительства 15000 руб. ГСМ за счёт Заказчика.

Постройка дома выполняется в двух видах: под усадку, когда дом отстаивается некоторое время и под ключ.

Зимой эксперты рекомендуют строить дом в морозную погоду, чтобы каркас не промок, в летнее время - не под дождем.

Подходящими для дачи или сада считают дома на винтовых сваях, у нас представлены одноэтажные и полуторатажные варианты.

Если вы собираетесь жить постоянно, предлагаем надежные и очень теплые двухэтажные и одноэтажные коттеджи и дома на плитных и ленточных фундаментах.

Существует 2 размера утепления: 150 мм и 200 мм. Каркасные дома с утеплителем 150 миллиметров получаются дешевле, но не настолько энергоэффективными.

Дополнительные услуги


Популярность каркасных домов объясняется быстрым темпом строительства, малозатратной несложной технологией возведения и невысокой стоимостью строений.

Проект 95 – комфортный дом с .

Если вы мечтаете о загородном доме, вас заинтересует этот проект полутораэтажного каркасного дома. Постройка имеет размеры 6х7 м. и может служить полноценным жильем. Общая площадь дома – 70 кв.м..

Главная отличительная черта дома – . Тип крыши: двускатная с покрытием из ондулина красного, зеленого или коричневого цвета. Окна двойные зимние со стеклами 1x1,2 м. Двери межкомнатные филенчатые (0,8x2,0 м). Количество окон, дверей может меняться согласно предпочтениям заказчика.

Наша компания имеет 15-летний опыт в проектировании и строительстве и предлагает целый спектр услуг по разработке и реализации проектов в Туле – подробности узнавайте у консультантов.


Популярные проекты


Дома из бруса 6х6 Каркасные дома с террасой Маленькие каркасные дома
хит продаж
Тип: с балконом, с маленькой террасой
Общая площадь: 2
3614500
от 3442500
хит продаж
Тип:
Общая площадь: 2
2596000
от 2472500
хит продаж
Тип:
Общая площадь: 2
2480500
от 2362500
Дома из бруса

Заказать или задать вопрос



Заказать или задать вопрос

Заказать звонок