Дома под ключ в Туле
Отзывы из Яндекс Карт
4.9
80 отзывов
Дополнительные услуги 88%
2 154 оценок
Комплектации 89%
1 535 оценок
Планировки 90%
2 484 оценок
Проекты 93%
2 231 оценок
С
Сережа З.01/24/2026 г.
Очень удобно, что есть варианты с беседкой в комплекте. Заказал дом 6х9 с пристроенной беседкой, вышло дешевле, чем раздельно. Беседку сделали с мангалом, дымоход вывели правильно. Один момент: крышу над беседкой сделали без уклона, пришлось переделывать — их косяк, исправили за свой счет.
С
Григорий Ц.04/06/2025 г.
Сомневался между разными технологиями, но менеджер компании подробно разъяснил все преимущества каркасного строительства для моего участка, и в итоге я получил тёплый и сухой дом в кратчайшие сроки.
Отзывы из Google Карт
4.8
48 отзывов
Дополнительные услуги 88%
2 154 оценок
Комплектации 89%
1 535 оценок
Планировки 90%
2 484 оценок
Проекты 93%
2 231 оценок
С
Тимофей Савин03/15/2026 г.
Долго выбирал между каркасником и брусом, в итоге взял профилированный брус 150х150 на дом 9х10 для ПМЖ. Зимой -25 было, внутри +22 без особых затрат, только печь каминная помогает.
С
Лиана Малофеева08/23/2025 г.
Огромное спасибо коллективу компании за мой прекрасный новый дом из профилированного бруса! Я очень переживала, как пройдет стройка, но процесс был организован безупречно: меня постоянно информировали о этапах, присылали фото, консультировали по всем возникающим вопросам. Дом построили даже немного раньше оговоренного срока, что стало приятным сюрпризом. Качество сборки на высоте, стены ровные и красивые, и я с удовольствием провожу здесь каждую свободную минуту.
Отзывы из 2гис
4.9
39 отзывов
Дополнительные услуги 88%
2 154 оценок
Комплектации 89%
1 535 оценок
Планировки 90%
2 484 оценок
Проекты 93%
2 231 оценок
С
Дайна04/06/2026 г.
Восхищаюсь результатом: баня 6х6 с бассейном и беседкой — моя мечта. БрусДома реализовали почти без замечаний, только лестницу в беседку сделали крутоватой, пришлось переделывать.
С
Никита Шаров02/27/2026 г.
Заказал у них зимний дом для ПМЖ 8х10 с двумя входами. Утеплили хорошо, за зиму ни разу не промерзло. Но вот с вентиляцией намудрили — пришлось самому дорабатывать, воздух застаивался.
С
Инесса Г.03/16/2025 г.
Зимой в нашем новом доме из бруса невероятно уютно и тепло, никаких сквозняков и мостиков холода, что доказывает высочайшее качество сборки и применяемых материалов.


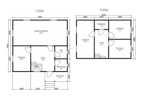
Проект №74 Двухэтажный Дом с мансардой 8х8,5

каркас из строганой доски
Создайте свой план для этого проекта
и отправьте его нам на расчет в один клик.
Каркасный дом (150 мм) 8х8,5 Толщина утепления 150 мм 2962500 Заказать
Каркасный дом (200 мм) 8х8,5 Толщина утепления 200 мм 3172500 Заказать

Для того, чтобы адаптировать уже готовый проект и получить уникальную планировку, пользуйтесь нашим планировщиком.

С помощью планировщика можно создать максимально подходящие эскизы, схемы, планы, чертежи дома с эркером, мансардой, с одной, двумя или тремя спальнями. Вы получите проект с современной планировкой, полностью отвечающий вашим потребностям.

При заказе дома вы сможете подобрать нужный тип кровли. Вашу крышу можно сделать двускатной, четырехскатной и вальмовой. Двухскатную считают особенно популярной в малометражных постройках.

Популярные размеры: мини - до 50м2 (чаще всего, 1-этажные дома); компактные - от 70м2 до 100 квадратов (обычно двухэтажные); большие - от 150 м2 и больше.

Предлагаем дуплексы - каркасные дома с двумя входами, рассчитанные на несколько семей. Дома предполагаются для нескольких хозяев, они разделяются на две половины, для каждой половины с отдельным входом.


Наши работы

Перейти в галерею


Комплектация

Площадь застройки: 73 м2
Длина: 8 м
Ширина: 8 м
Общая площадь: 114 м2
Исполнение Под ключ (с отделкой)
Фундамент Свайно-винтовой или ж/б сваи (рассчитываются отдельно).
Гидроизоляция фундамента Рубероид в два слоя.
Основание (обвязка) Из обрезного бруса 150х150 мм. 150х200 мм. согласно выбранной толщине утепления. Торцевая доска строганая 45х145/45х195+/-5 мм. согласно выбранной толщине утепления. Обработка антисептиком.
Цокольное перекрытие Строганая доска камерной сушки 45х145/45х195+/-5 мм. с шагом 590 мм. Обработка антисептиком.
Пол черновой Обрезная доска камерной сушки 20х100 мм.
Влаго-ветрозащита чернового пола Мембрана Ондутис А100.
Внешние стены Стойки каркаса из строганой доски камерной сушки 45х145/45х195+/-5 мм. с шагом 590 мм. Верхняя двойная и нижняя обвязки из строганой доски камерной сушки 45х145/45х195+/-5 мм. Разгрузочный ригель из строганой доски 45х145+/-5 мм. Укосины из строганой доски 20х95 мм.
Перегородки Стойки каркаса из строганой доски камерной сушки 45х95+/-5 мм. с шагом 590 мм. Верхняя двойная и нижняя обвязки из строганой доски 45х95+/-5 мм. Разгрузочный ригель из строганой доски камерной сушки 45х145+/-5 мм. Укосины из строганой доски камерной сушки 20х95 мм.
Сборка каркаса На гвозди.
Высота от пола до потолка Дом одноэтажный: 2,5 м. Дом с мансардой: 1-ый этаж- 2,5 м.
2-ой этаж (мансарда)- 2,3 м.
Дом в полтора и два этажа:
1-ый этаж 2,5 м.
2-ой этаж 2,4 м. в полутораэтажном доме
2,5 м. в двухэтажном доме.
Внешняя отделка стен Имитация бруса камерной сушки, сорт АВ, толщиной 17 мм. Монтаж через строганый брусок камерной сушки 45х45+/-5 мм. (вентилируемый фасад). Влаго-ветрозащитная мембрана- Ондутис А100.
Внутренняя отделка стен, перегородок Евровагонка камерной сушки, сорт АВ, толщиной 12,5 мм. по строганой рейке 20х40+/-5 мм. либо ГКЛ 12,5 мм.
Отделка потолка Евровагонка камерной сушки, сорт АВ толщиной, 12,5 мм. по строганой рейке 20х40+/-5 мм. либо ГКЛ 12,5 мм.
Пол чистовой Шпунтованная доска камерной сушки толщиной 35-36 мм. сорт АВ. по строганой рейке 20х40+/-5 мм. либо шпунтованная ДСП 16 мм. по разряженной обрешётке из строганой доски камерной сушки 20х95+/-5 мм.
Утепление (пол, потолок) Минеральная вата Knauf 150/200 мм. согласно выбранной толщине утепления.
Утепление стен Плитный утеплитель Rockwool, толщиной 150/200 мм. согласно выбранной толщине утепления.
Звукоизоляция перегородок Плитный утеплитель Rockwool, толщиной 100 мм.
Пароизоляция (стены, перегородки, пол, потолок) Плёнка Ондутис R70. Дополнительная герметизация нахлёстов/примыканий пароизоляционной плёнки клейкой лентой Delta.
Окна Двухкамерные стеклопакеты ПВХ белого цвета, профиль 60 мм. В комплекте: отливы, подоконники, москитные сетки.
Двери Входная- металлическая, утеплённая (Россия). Межкомнатные- филёнчатые.
Наличники на окна и двери Наличник деревянный, строганый, камерной сушки 70-90 мм. с двух сторон.
Лестница (при наличии второго этажа) Деревянная, одно или двухмаршевая. Перила- заводские резные, балясины- заводские точеные, устанавливаются стартовые точёные столбы. Ступени 40х200 мм. Тетива лестницы- 90х140 мм.
Крыша Двускатная, ломаная или вальмовая в соответствии с проектом.
Стропильная система Выполнена из строганой доски камерной сушки 45х145/45х195+/-5 мм. Шаг установки стропил 590 мм.
Обрешётка Выполняется из строганой доски камерной сушки толщиной 20х95+/-5 мм. Шаг крепления обрешетки 350 мм. Контробрешётка выполняется из строганого бруска камерной сушки 45х45+/-5 мм. Крепится по стропилам (вентиляционный зазор).
Подкровельная мембрана Ондутис А100
Кровельное покрытие (на выбор) Металлочерепица 0,45 мм. Цвет на выбор.
Фронтоны (при наличии) Каркас из строганой доски камерной сушки 45х145/45х195+/-5 мм. Обшиваются имитацией бруса камерной сушки, сорт АВ, толщиной 17 мм. Монтаж через строганый брусок камерной сушки 45х45+/-5 мм. (вентилируемый фасад). Влаго-ветрозащитная мембрана- Ондутис А100. Монтаж вентиляционных решёток.
Свесы крыши Ширина 400 мм. Подшиваются вагонкой камерной сушки, сорт АВ.
Терраса/балкон (при наличии) Устанавливаются опорные столбы из строганного бруса камерной сушки 140х140 мм.
Отделка потолка террасы/балкона Евровагонка камерной сушки толщиной 12,5 мм. сорт АВ.
Пол террасы/балкона Шпунтованная доска камерной сушки толщиной 35-36 мм. сорт АВ.
Ограждение террасы/балкона Перила- строганая доска. Балясины- точеные, фигурные. Либо ограждение в скандинавском стиле. Устанавливаются ступени у входа.
Допуск на геометрические параметры Составляет +/- 50 мм по длине с каждой стороны.
Допускается стыковка имитации бруса, вагонки и половой доски По всему периметру стен дома (если ширина и длина дома более 6,0 метров). Вагонки и доски пола в каждой отдельной комнате.
Допуски по имитации бруса, вагонке, доске +/- 5 мм.
В стоимость включена Доставка комплекта материала в радиусе 500 км. от г. Пестова Новгородской области и сборка дома на вашем участке.
Гарантия 5 лет.
Бытовка строительная 2,0х3,0 м. каркасно-щитовая. Стоимость 23000 руб. Остаётся на участке Заказчика.
Туалет 1,0х1,0 м. каркасно-щитовой. Стоимость 12000 руб. Остаётся на участке Заказчика.
Генератор Стоимость аренды на весь срок строительства 15000 руб. ГСМ за счёт Заказчика.

Постройка дома выполняется в двух видах: под усадку, когда дом отстаивается некоторое время и под ключ.

Зимой эксперты рекомендуют строить дом в морозную погоду, чтобы каркас не промок, в летнее время - не под дождем.

Подходящими для дачи или сада считают дома на винтовых сваях, у нас представлены одноэтажные и полуторатажные варианты.

Если вы собираетесь жить постоянно, предлагаем надежные и очень теплые двухэтажные и одноэтажные коттеджи и дома на плитных и ленточных фундаментах.

Существует 2 размера утепления: 150 мм и 200 мм. Каркасные дома с утеплителем 150 миллиметров получаются дешевле, но не настолько энергоэффективными.

Дополнительные услуги


Популярность каркасных домов объясняется быстрым темпом строительства, малозатратной несложной технологией возведения и невысокой стоимостью строений.

Проект 74 – комфортный дом с .

Если вы мечтаете о загородном доме, вас заинтересует этот проект полутораэтажного каркасного дома. Постройка имеет размеры 8х8,5 м. и может служить полноценным жильем. Общая площадь дома – 114 кв.м..

Главная отличительная черта дома – . Тип крыши: двускатная с покрытием из ондулина красного, зеленого или коричневого цвета. Окна двойные зимние со стеклами 1x1,2 м. Двери межкомнатные филенчатые (0,8x2,0 м). Количество окон, дверей может меняться согласно предпочтениям заказчика.

Наша компания имеет 15-летний опыт в проектировании и строительстве и предлагает целый спектр услуг по разработке и реализации проектов в Туле – подробности узнавайте у консультантов.


Популярные проекты


Дома из бруса с таррасой Каркасные дома 9х10 Бани из бруса 6х4
хит продаж
Тип: с балконом, с маленькой террасой
Общая площадь: 2
2438500
от 2322500
хит продаж
Тип: с балконом, с маленькой террасой
Общая площадь: 2
2218000
от 2112500
хит продаж
Тип: с маленькой террасой
Общая площадь: 2
3488500
от 3322500
Дома из бруса

Заказать или задать вопрос



Заказать или задать вопрос

Заказать звонок