Дома под ключ в Туле
Отзывы из Яндекс Карт
4.9
78 отзывов
Дополнительные услуги 88%
2 154 оценок
Комплектации 89%
1 535 оценок
Планировки 90%
2 484 оценок
Проекты 93%
2 231 оценок
С
Маша Булгакова02/17/2026 г.
Знаете, бывают компании, где менеджеры врут и пропадают. А тут девушка на связи была постоянно, даже вечером отвечала на глупые вопросы про размеры гостиной. Построили 10х12 с гаражом и котельной, муж доволен, а мне нравится, что планировка удобная.
С
Леся Голубева05/30/2025 г.
Большим плюсом для меня стала возможность приехать на производство и лично посмотреть, как подготавливаются детали будущего дома, это придало уверенности в том, что все элементы будут идеально подогнаны друг к другу при сборке на участке.
Отзывы из Google Карт
4.8
47 отзывов
Дополнительные услуги 88%
2 154 оценок
Комплектации 89%
1 535 оценок
Планировки 90%
2 484 оценок
Проекты 93%
2 231 оценок
С
Антонина Д.05/06/2026 г.
Я в принципе недоверчивая, но здесь подкупило, что дали гарантию на усадку аж на 3 года. Заказала одноэтажный 8х11 с печкой и панорамным окном. В первый год немного повело дверной проём — приехали, выровняли. Сейчас всё отлично, зимой даже при -25 комфортно.
С
Нина Б.03/21/2026 г.
Честно, сначала боялась связываться со строителями, но менеджер Анна так подробно всё объяснила про усадку и отделку, что стало спокойнее. Дом под ключ сдали без задержек.
С
Габриэлла Новикова08/19/2025 г.
Я бесконечно благодарна за тепло, которое подарили мне мастера компании "Брус дома", построив такой замечательный каркасный дом. Зимой в нем невероятно уютно и тепло, а летом царит приятная прохлада. Работа была выполнена с душой, и это чувствуется в каждой детали, в каждой дощечке моего нового жилья.
Отзывы из 2гис
4.9
39 отзывов
Дополнительные услуги 88%
2 154 оценок
Комплектации 89%
1 535 оценок
Планировки 90%
2 484 оценок
Проекты 93%
2 231 оценок
С
Зиновий Ж.04/13/2026 г.
Дом 7х10 с панорамным остеклением и балконом — смотрится шикарно, но зимой окна запотевали, пока не догадался поставить приточные клапаны. В компании сказали "ну так вы не заказывали вентиляцию". В общем, внимательнее читайте спецификацию.
С
Виталий Овсянников01/09/2026 г.
Заказывал дачный дом эконом-варианта, только для лета. Сделали без изысков, но аккуратно. Через год немного покосило веранду, но это я сам фундамент слабоватый сделал, экономил.
С
Филимон Синицин03/11/2025 г.
Отдельная благодарность прорабу Дмитрию и его бригаде за чистейшую работу на участке и внимательное отношение к деталям, видно, что люди гордятся тем, что делают, и стремятся к идеальному результату.


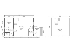
Проект №12 Каркасная баня 5х8

каркас из строганой доски
Создайте свой план для этого проекта
и отправьте его нам на расчет в один клик.
Каркасный дом (150 мм) 5х8 Толщина утепления 150 мм 1962500 Заказать
Каркасный дом (200 мм) 5х8 Толщина утепления 200 мм 2142500 Заказать

Чтобы получить свою уникальную планировку, пользуйтесь нашим планировщиком.

При помощи планировщика вы сможете сделать эскизы, чертежи, схемы, планы вашей будущей бани с эркером, мансардой, с несколькими спальнями. Вы получите персональный проект, полностью отвечающий вашим потребностям.

При заказе постройки бани можно выбрать определенный вид крыши: двускатная, четырехскатная и вальмовая. Двухскатная крыша считается наиболее популярной в не очень больших банях.

Самые популярные размеры на текущий момент: мини - до 36 м2 (в большинстве случаев, одноэтажные); компактные - от 36 до 70 м2 (обычно 2х этажные); большие постройки - от 70 квадратов и больше.


Наши работы

Перейти в галерею


Комплектация

Площадь застройки: 43 м2
Длина: 5 м
Ширина: 8 м
Общая площадь: 56 м2
Исполнение Под ключ (с отделкой)
Фундамент Свайно-винтовой или ж/б сваи (рассчитываются отдельно).
Гидроизоляция фундамента Рубероид в два слоя.
Основание (обвязка) Из обрезного бруса 150х150 мм. 150х200 мм. согласно выбранной толщине утепления. Торцевая строганая доска камерной сушки 45х145/45х195+/-5 мм. Обработка антисептиком.
Цокольное перекрытие Строганая доска камерной сушки 45х145/45х195+/-5 мм. с шагом 590 мм. Обработка антисептиком.
Пол черновой Обрезная доска камерной сушки 20х100 мм.
Влаго-ветрозащита чернового пола Мембрана Ондутис А100.
Внешние стены Стойки каркаса из строганой доски камерной сушки 45х145/45х195+/-5 мм. с шагом 590 мм. Верхняя двойная и нижняя обвязки из строганой доски камерной сушки 45х145/45х195+/-5 мм. Разгрузочный ригель из строганой доски 45х145+/-5 мм. Укосины из строганой доски 20х95 мм.
Перегородки Стойки каркаса из строганой доски камерной сушки 45х95+/-5 мм. с шагом 590 мм. Верхняя двойная и нижняя обвязки из строганой доски 45х95+/-5 мм. Разгрузочный ригель из строганой доски камерной сушки 45х145+/-5 мм. Укосины из строганой доски камерной сушки 20х95 мм.
Сборка каркаса На гвозди.
Высота от пола до потолка Баня одноэтажная: 2,5 м. Баня с мансардой: 1-ый этаж- 2,5 м.
2-ой этаж (мансарда)- 2,3 м.
Баня в полтора и два этажа:
1-ый этаж 2,5 м.
2-ой этаж 2,4 м. в полутораэтажной бане.
2,5 м. в двухэтажной бане.
Внешняя отделка стен Имитация бруса камерной сушки, сорт АВ, толщиной 17 мм. Монтаж через строганый брусок камерной сушки 45х45+/-5 мм. (вентилируемый фасад). Влаго-ветрозащитная мембрана- Ондутис А100.
Внутренняя отделка стен, перегородок Евровагонка камерной сушки, сорт АВ, толщиной 12,5 мм. по строганой рейке 20х40+/-5 мм. либо ГКЛ 12,5 мм.
Отделка потолка Евровагонка камерной сушки, сорт АВ, толщиной 12,5 мм. по строганой рейке 20х40+/-5 мм. либо ГКЛ 12,5 мм.
Пол чистовой Шпунтованная доска камерной сушки толщиной 35-36 мм. сорт АВ. по строганой рейке 20х40+/-5 мм. либо шпунтованная ДСП 16 мм. по разряженной обрешётке из строганой доски камерной сушки 20х95+/-5 мм.
Утепление (пол, потолок) Минеральная вата Knauf 150/200 мм. согласно выбранной толщине утепления.
Утепление стен Плитный утеплитель Rockwool, толщиной 150/200 мм. согласно выбранной толщине утепления.
Звукоизоляция перегородок Плитный утеплитель Rockwool, толщиной 100 мм.
Пароизоляция (стены, перегородки, пол, потолок) Плёнка Ондутис R70. Дополнительная герметизация нахлёстов/примыканий пароизоляционной плёнки клейкой лентой Delta.
Отделка парной Отделка осиновой вагонкой камерной сушки, сорт АВ по фольге, через строганую рейку 20х40+/-5 мм. (вентиляционный зазор). Установка пологов из осины.
Окна Двухкамерные стеклопакеты ПВХ белого цвета, профиль 60 мм. В комплекте: отливы, подоконники, москитные сетки.
Двери Входная- металлическая, утеплённая (Россия). Межкомнатные- филёнчатые. В душевую/парную- клиновые (банные).
Наличники на окна и двери Наличник деревянный, строганый, камерной сушки 70-90 мм. с двух сторон.
Лестница (при наличии второго этажа) Деревянная, одно или двухмаршевая. Перила- заводские резные, балясины- заводские точеные, устанавливаются стартовые точёные столбы. Ступени 40х200 мм. Тетива лестницы- 90х140 мм.
Крыша Двускатная, ломаная или вальмовая в соответствии с проектом.
Стропильная система Выполнена из строганой доски камерной сушки 45х145/45х195+/-5 мм. Шаг установки стропил 590 мм.
Обрешётка Выполняется из строганой доски камерной сушки толщиной 20х95+/-5 мм. Шаг крепления обрешетки 350 мм. Контробрешётка выполняется из строганого бруска камерной сушки 45х45+/-5 мм. Крепится по стропилам (вентиляционный зазор).
Подкровельная мембрана Ондутис А100
Кровельное покрытие (на выбор) Металлочерепица 0,45 мм. Цвет на выбор.
Фронтоны (при наличии) Каркас из строганой доски камерной сушки 45х145/45х195+/-5 мм. Обшиваются имитацией бруса камерной сушки, сорт АВ, толщиной 17 мм. Монтаж через строганый брусок камерной сушки 45х45+/-5 мм. (вентилируемый фасад). Влаго-ветрозащитная мембрана- Ондутис А100. Монтаж вентиляционных решёток.
Свесы крыши Ширина 400 мм. Подшиваются вагонкой камерной сушки, сорт АВ.
Терраса/балкон (при наличии) Устанавливаются опорные столбы из строганного бруса камерной сушки 140х140 мм.
Отделка потолка террасы/балкона Евровагонка камерной сушки толщиной 12,5 мм. сорт АВ.
Пол террасы/балкона Шпунтованная доска камерной сушки толщиной 35-36 мм. сорт АВ.
Ограждение террасы/балкона Перила- строганая доска. Балясины- точеные, фигурные. Либо ограждение в скандинавском стиле. Устанавливаются ступени у входа.
Допуск на геометрические параметры Составляет +/- 50 мм по длине с каждой стороны.
Допускается стыковка имитации бруса, вагонки и половой доски По всему периметру стен бани (если ширина и длина бани более 6,0 метров). Вагонки и доски пола в каждой отдельной комнате.
Допуски по имитации бруса, вагонке, доске +/- 5 мм.
В стоимость включена Доставка комплекта материала в радиусе 500 км. от г. Пестова Новгородской области и сборка дома на вашем участке.
Гарантия 5 лет.
Печь По запросу.
Бытовка строительная 2,0х3,0 м. каркасно-щитовая. Стоимость 23000 руб. Остаётся на участке Заказчика.
Туалет 1,0х1,0 м. каркасно-щитовой. Стоимость 12000 руб. Остаётся на участке Заказчика.
Генератор Стоимость аренды на весь срок строительства 15000 руб. ГСМ за счёт Заказчика.

Постройка каркасных бань осуществляется в 2-х видах: сразу под ключ и под усадку, когда дом отстаивается в течение некоторого времени.

Зимой эксперты рекомендуют строить бани в холодную погоду, чтобы каркас не промок, в летний сезон - не в дождливую.

Максимально подходящими для дачи или сада считают бани на винтовых сваях, на нашем сайте имеются одноэтажные и полуторатажные варианты бань.

Существует 2 размера утепления: 150 мм и 200 мм. Каркасные бани с утеплителем сто пятьдесят миллиметров получаются дешевле, но не такими теплыми.

Дополнительные услуги



Популярные проекты


Одноэтажные дома из бруса Каркасные дома 6х5 Двухэтажные бани из бруса
Дома из бруса

Заказать или задать вопрос



Заказать или задать вопрос

Заказать звонок