Дома под ключ в Туле
Отзывы из Яндекс Карт
4.9
82 отзывов
Дополнительные услуги 88%
2 154 оценок
Комплектации 89%
1 535 оценок
Планировки 90%
2 484 оценок
Проекты 93%
2 231 оценок
С
Анатолий Т.04/27/2026 г.
Мой дом 9х11 с эркером и вторым светом стоит уже вторую зиму. Тепло держит отлично, даже в морозы -30 котельная еле гудит. Единственное — лестницу на второй этаж сделали крутоватой, жена ворчит.
С
Услада Ильина03/26/2026 г.
Удивительно, но компания БрусДома сама позвонила через полгода и спросила, всё ли в порядке. У нас дом 5х8 с верандой, на веранде доска повела — заменили по гарантии.
С
Хана Корнилова01/19/2025 г.
Строительство бани под ключ силами компании Брус дома прошло на удивление легко и быстро, а я как заказчик всегда чувствовала контроль над процессом и получала исчерпывающие консультации по всем возникающим вопросам.
Отзывы из Google Карт
4.8
49 отзывов
Дополнительные услуги 88%
2 154 оценок
Комплектации 89%
1 535 оценок
Планировки 90%
2 484 оценок
Проекты 93%
2 231 оценок
С
Камиль Ю.02/04/2026 г.
Дом 8х10 для постоянного проживания взял под усадку, пока стоит, весной буду отделкой заниматься. Компания оставила подробную инструкцию по усадке и уходу за брусом, что очень помогло. Немного напрягало, что менеджер иногда не отвечал по вечерам, но в целом вопросы решали.
С
Ирма01/20/2026 г.
Очень долго выбирала проект для постоянного проживания. Остановилась на 9х12 двухэтажном, с балконом и сауной. Менеджер Наталья из БрусДома буквально жила с нами в переписке — отвечала на глупые вопросы в 11 вечера. В процессе поменяли планировку кухни-го
С
Даниэла Соловьёва05/18/2025 г.
Спасибо вам за теплый и очень красивый дом, который построен с душой и огромным вниманием к деталям, начиная от ровных углов и заканчивая идеально гладкой поверхностью стен, ведь теперь каждое утро я просыпаюсь с улыбкой, глядя на солнечные зайчики, играющие на деревянных стенах.
Отзывы из 2гис
4.9
39 отзывов
Дополнительные услуги 88%
2 154 оценок
Комплектации 89%
1 535 оценок
Планировки 90%
2 484 оценок
Проекты 93%
2 231 оценок
С
Никифор Злобин06/10/2025 г.
Особую благодарность хочу выразить прорабу Илье который лично контролировал каждый этап строительства моего дома и постоянно информировал меня о ходе работ присылая фото и видео с объекта — это очень удобно когда не можешь часто приезжать на участок.


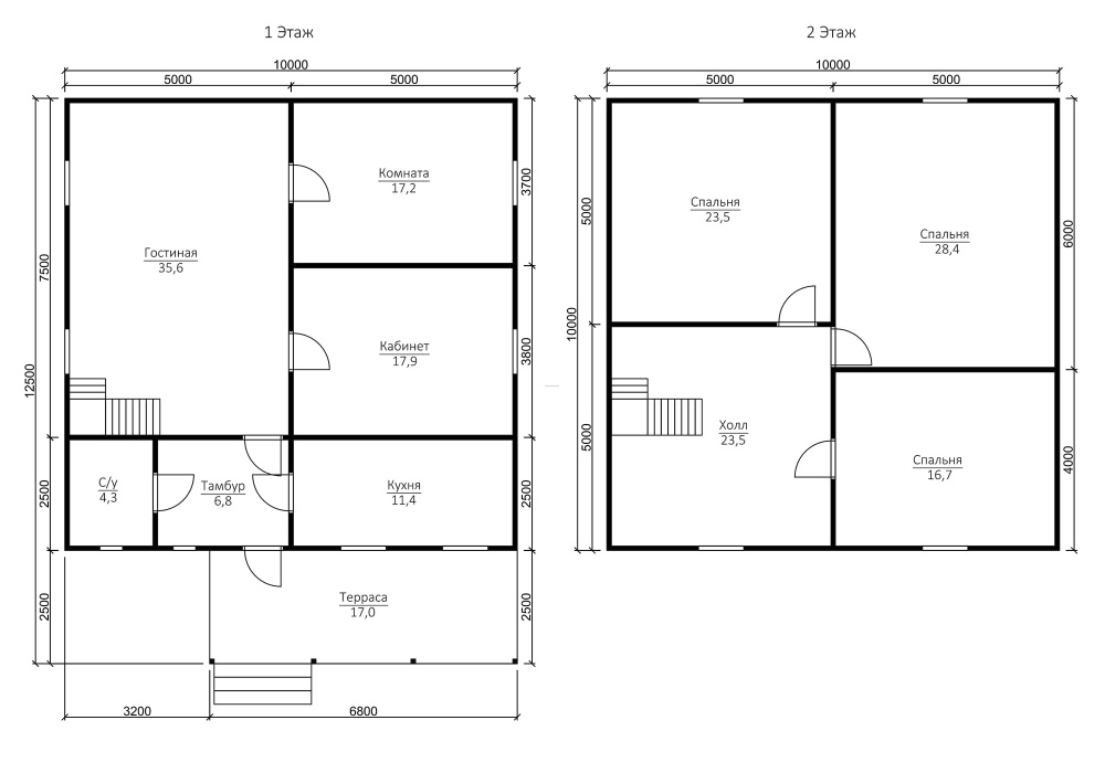
Проект №113 Дом с террасой 10х10

брус камерной сушки
Создайте свой план для этого проекта
и отправьте его нам на расчет в один клик.
Под ключ (с отделкой) 10х10 Профилированный 140х140 мм 3992500 Заказать
Под ключ (с отделкой) 10х10 Профилированный 190х140 мм 4252500 Заказать
Под усадку (без отделки) 10х10 Cруб дома 140х140 мм 2232500 Заказать
Под усадку (без отделки) 10х10 Cруб дома 190х140 мм 2472500 Заказать


Комплектация

Площадь застройки: 117 м2
Длина: 10 м
Ширина: 10 м
Общая площадь: 185 м2
Под ключ (с отделкой) Под усадку (без отделки)
Фундамент Свайно-винтовой или ж/б сваи (рассчитываются отдельно).
Гидроизоляция фундамента Рубероид в два слоя.
Основание (обвязка) Из обрезного бруса (100х150 мм. 150х150 мм. 150х200 мм. согласно выбранному сечению бруса). Обработка антисептиком.
Количество рядов основания 2 2
Цокольное перекрытие Обрезной брус камерной сушки 100х150/50х200 мм. с шагом 600 мм. Обработка антисептиком. Обрезной брус естественной влажности 100х150/50х200 мм. с шагом 600 мм. Обработка антисептиком.
Пол черновой Обрезная доска камерной сушки 20х100 мм. Обрезная доска естественной влажности 20х100 мм.
Внешние стены Профилированный брус камерной сушки, сечением 90х140/140х140/190х140 мм. по выбранной комплектации. Два вида профиля: 
1. С двух сторон, прямой со снятой фаской. 2. Снаружи под «блок- хаус», внутри прямой.
Высота сруба: Сруб одноэтажный- 18 венцов
Сруб с мансардой- 18 венцов
Сруб в 1,5 этажа- 18 венцов, далее каркас с внешней отделкой имитацией бруса.
Сруб в 2 этажа- 37 венцов
Профилированный брус естественной влажности, сечением 90х140/140х140/190х140 мм. по выбранной комплектации. Два вида профиля: 
1. С двух сторон, прямой со снятой фаской. 2. Снаружи под «блок- хаус», внутри прямой.
Высота сруба: Сруб одноэтажный- 18 венцов
Сруб с мансардой- 18 венцов
Сруб в 1,5 этажа- 18 венцов, далее каркас с внешней отделкой имитацией бруса.
Сруб в 2 этажа- 37 венцов
Межвенцовый утеплитель Джут (льноджутовое полотно). Джут (льноджутовое полотно).
Перегородки 1-го этажа Профилированный брус камерной сушки, сечением 90х140 мм. Профилированный брус естественной влажности, сечением 90х140 мм.
Перегородки 2-го этажа Каркасные: доска камерной сушки 40х100 мм, обшитые евровагонкой хвойных пород, камерной сушки, толщиной 12,5 мм. сорт «АВ» (дома с мансардой и в 1,5 этажа). Брусовые: профилированный брус камерной сушки, сечением 90х140 мм. (дома двухэтажные). Каркасные: доска естественной влажности 40х100 мм. (дома с мансардой и в 1,5 этажа). Брусовые: профилированный брус естественной влажности, сечением 90х140 мм. (дома двухэтажные).
Сборка сруба Берёзовый нагель. Берёзовый нагель.
Соединение углов сруба «Тёплый угол» (коренной шип). «Тёплый угол» (коренной шип).
Высота от пола до потолка Сруб одноэтажный: 2,4 м. (18 венцов) Сруб с мансардой: 1-ый этаж- 2,4 м. (18 венцов)
2-ой этаж (мансарда)- 2,3 м.
Сруб в полтора и два этажа:
1-ый этаж 2,4 м ±4 см. (18 венцов)
2-ой этаж 2,4 м ±4 см. каркасные аттиковые стены (боковые) высотой 1,5 м. в полутораэтажном доме
2,4 м ±4 см (поднят брусом на 18 венцов) в двухэтажном доме.
Сруб одноэтажный: 2,5 м. (18 венцов) Сруб с мансардой: 1-ый этаж- 2,5 м. (18 венцов)
2-ой этаж (мансарда)- 2,4 м.
Сруб в полтора и два этажа:
1-ый этаж 2,5 м ±4 см. (18 венцов)
2-ой этаж 2,5 м ±4 см. каркасные аттиковые стены (боковые) высотой 1,5 м. в полутораэтажном доме
2,5 м ±4 см (поднят брусом на 18 венцов) в двухэтажном доме.
Утепление (пол, потолок, мансарда) Минеральная вата Knauf 150 мм. Отсутствует.
Пароизоляция (пол, потолок, мансарда) Ондутис R70. Отсутствует.
Пол чистовой Шпунтованная доска камерной сушки толщиной 36 мм. сорт АВ. по рейке 20х40 мм. либо шпунтованная ДСП 16 мм. по разряженной обрешётке из обрезной доски камерной сушки 20х100 мм. Отсутствует.
Потолки Евровагонка камерной сушки толщиной 12,5 мм. сорт АВ. Отсутствует.
Окна Деревянные, двойного остекления. Отсутствуют.
Двери Входная- металлическая, утеплённая (Россия). Межкомнатные- филёнчатые. Отсутствуют.
Наличники на окна и двери Наличник деревянный, строганый, камерной сушки 70-90 мм. Отсутствует.
Шиповка оконных и дверных проёмов (ройки) Да. Отсутствует.
Лестница (при наличии второго этажа) Деревянная, одно или двухмаршевая. Перила- заводские резные, балясины- заводские точеные, устанавливаются стартовые точёные столбы. Ступени 40х200 мм. Тетива лестницы- 90х140 мм. Отсутствует.
Крыша Двускатная, ломаная или вальмовая в соответствии с проектом. Двускатная, ломаная или вальмовая в соответствии с проектом.
Стропильная система Выполнена из обрезной доски камерной сушки 40х150 мм. Шаг установки стропильных ног 600 мм. Выполнена из обрезной доски естественной влажности 40х150 мм. Шаг установки стропильных ног 600 мм.
Обрешётка Выполняется из обрезной доски камерной сушки толщиной 20-22 мм. Шаг крепления обрешетки 300 мм. Контробрешётка выполняется из бруска камерной сушки 40х50 мм. Крепится по стропильным ногам (вентиляционный зазор). Выполняется из обрезной доски естественной влажности толщиной 20-22 мм. Шаг крепления обрешетки 300 мм. Контробрешётка выполняется из бруска естественной влажности 40х50 мм. Крепится по стропильным ногам (вентиляционный зазор).
Подкровельная мембрана Ондутис А100 Ондутис А100
Кровельное покрытие (на выбор) Ондулин, Черепица Ондулин. Ондулин, Черепица Ондулин.
Фронтоны (при наличии) Каркас из обрезной доски камерной сушки 40х150 мм. Обшиваются вагонкой камерной сушки толщиной 16 мм. сорт АВ по контррейке 20х40 мм. (вентиляционный зазор). Влаго-ветрозащита Ондутис А100. Монтаж вентиляционных решёток. Каркас из обрезной доски естественной влажности 40х150 мм. Обшиваются вагонкой камерной сушки толщиной 16 мм. сорт АВ по контррейке 20х40 мм. (вентиляционный зазор). Влаго-ветрозащита Ондутис А100. Монтаж вентиляционных решёток.
Свесы крыши Ширина 400 мм. Подшиваются вагонкой камерной сушки, сорт АВ. Ширина 400 мм. Подшиваются вагонкой камерной сушки, сорт АВ.
Терраса/балкон (при наличии) Устанавливаются опорные столбы из строганного бруса камерной сушки 140х140 мм. с компенсационными болтами под усадку. Устанавливаются опорные столбы из строганного бруса естественной влажности 140х140 мм. с компенсационными болтами под усадку.
Отделка потолка террасы/балкона Евровагонка камерной сушки толщиной 12,5 мм. сорт АВ. Отсутствует.
Пол террасы/балкона Шпунтованная доска камерной сушки толщиной 36 мм. сорт АВ. Отсутствует.
Ограждение террасы/балкона Перила- строганая доска. Балясины- точеные, фигурные. Либо ограждение в скандинавском стиле. Устанавливаются ступени у входа. Отсутствует.
Допуск на геометрические параметры сруба Составляет +/- 50 мм по длине с каждой стороны. Составляет +/- 50 мм по длине с каждой стороны.
Допускается стыковка бруса, вагонки и половой доски По всему периметру стен дома (если ширина и длина дома более 6,0 метров). Вагонки и доски пола в каждой отдельной комнате. По всему периметру стен дома (если ширина и длина дома более 6,0 метров).
Допуски по брусу, доске +/- 5 мм. +/- 5 мм.
В стоимость включена Доставка комплекта материала в радиусе 500 км. от г. Пестова Новгородской области и сборка дома на вашем участке. Доставка комплекта материала в радиусе 500 км. от г. Пестова Новгородской области и сборка дома на вашем участке.
Гарантия 5 лет. 2 года.
Бытовка строительная 2,0х3,0 м. каркасно-щитовая. Стоимость 23000 руб. Остаётся на участке Заказчика. Стоимость 23000 руб. Остаётся на участке Заказчика.
Туалет 1,0х1,0 м. каркасно-щитовой. Стоимость 12000 руб. Остаётся на участке Заказчика. Стоимость 12000 руб. Остаётся на участке Заказчика.
Генератор Стоимость аренды на весь срок строительства 10000 руб. ГСМ за счёт Заказчика. Стоимость аренды на весь срок строительства 10000 руб. ГСМ за счёт Заказчика.

Постройка деревянного дома выполняется в 2-х видах: под усадку, когда сруб будет отстаиваться в течение определенного времени и под ключ.

Зимой мастера рекомендуют строить дом из зимнего леса, в летний сезон - из дерева камерной сушки.

Подходящими для дачи или сада стали дома на винтовых сваях, у нас можно найти одноэтажные и полуторатажные варианты.

Для ПМЖ (постоянного проживания), готовы предложить теплые и надежные одноэтажные и двухэтажные коттеджи и дома на ленточных и плитных фундаментах.

Существует несколько вариантов размера профбруса: 140х140 мм и 190х140 мм. Постройки из вертикального бруса возводятся с использованием бруса 140х190 мм.

Дополнительные услуги


Дачный дом из бруса несет в себе надежность и уют. Проект 113, полутораэтажный дом с маленькой террасой размерами 10х10 м. и жилой площадью 185 кв.м., станет идеальным решением для проживания за городом. Экологически чистый материал обеспечит естественную вентиляцию и регулировку уровня влажности, тем самым создавая максимально комфортный микроклимат.

Отделка двускатной крыши выполняется из ондулина. Кровельное покрытие предлагается в красном, зеленом или коричневом цвете.Планировка грамотно распределяет имеющееся пространство.

Двойные полы утеплены матами URSA/ISOVER и надежно защищены паро- и гидроизоляционными материалами. Стеновой брус прокладывается джутовым волокном.
В комплектацию также входят двойные стеклопакеты и филенчатые двери.

Профилированный брус обеспечивает простой монтаж, устойчивость к деформациям и придает привлекательный вид сооружению.

Наша компания принимает заказы на возведение домов из бруса в Туле по любому из предложенных на сайте проектов. Благодаря качественным стройматериалам, инновационным технологиям и штату профессиональных сотрудников мы воплотим в реальность вашу мечту!


Заказать или задать вопрос



Заказать или задать вопрос

Заказать звонок